Lakeland Hills

Lakeland Hills was developed and built by Longhorn Construction, a subsidiary of Ben Sira Construction. Longhorn Construction consisted of Alfred A Holmberg, Huber Boedeker, Waller C Boedeker, Clyde S Constant, and Bill H Bishop, all important figures in the Dallas building scene during this period. This historic Mid-Century section of Highland Meadows includes parts of Rolling Rock Lane, Glen Echo Court, Cactus Lane, Lubbock Drive, Quail Run, Hackney Lane, Shagrock Lane, and Capri Drive.

Homes in Lakeland Hills were a showcase of custom contemporary design in the 1950’s with homes designed by a list of noted architects including Harry E Marlow, Arch B Swank Jr, E Dow Davidson Sr, and J Stuart Todd. Lakeland Hills was originally planned as a developement of 1400 homes on a 300 acre tract bordered by Northwest Highway on the South, Jupiter Rd on the East, and Kingsley Rd (now Walnut Hill Ln) on the North. It would have been the world’s largest all air-conditioned development. The projected cost of Lakeland Hills in 1955 was an astonishing $20,000,000 or $217,000,000 in 2025.

Longhorn Construction began building in the summer of 1955 and ended construction in 1959 after the death of Huber Boedeker on December 15, 1958. Although Longhorn Construction didn’t complete the planned 1400 homes in Lakeland Hills, the ??? homes that were constructed are an important collection of architecturally significant homes that stand as a reminder of the optimism and aspirations of post-war America.

Lakeland Hills - Authentic Contemporary Custom Designs

September 16, 1956 - Dallas Morning News

This advertisement features a home designed by Harry E Marlow at 8506 Rolling Rock. Homes in Lakeland Hills were offered in three bedroom, three bedroom + den, and four bedroom. All homes featured “year round air conditioning”, and an all electric kitchen by Frigidaire.

Originally priced between $16,500 to $19,700…

Longhorn Construction Co.

Longhorn Construction - Lakeland Hills

Alfred A. Holmberg - President

Waller C. Boedecker - Vice President

Clyde S. Constant - Vice President

B. H. Bishop - Secretary-Treasurer

Huber Boedecker - Partner

Harry E. Marlow - Project Coordinator

photo: 1957, by Squire Haskins - Highland Meadows Preservation Archive

Lakeland Hills, White Rock Commuter Rail Station

Strategically located, Lakeland Hills advertised its close proximity to the newly opened Santa Fe Railroad’s White Rock Station.

“The White Rock passenger station - the Santa Fe railroad’s first suburban train station depot built in the Southwest - opened on December 5, 1955 on Jupiter Rd, about a quarter mile south of Kingsley, a few miles northeast of White Rock Lake. It was the culmination of a 7,000,000.00 construction project in which two depots were built and 49.3 miles of new track was laid between Dallas and Denton (or, more specifically , between Zacha Junction - the area near Northwest Highway & Garland Road - and Dalton Junction, an area just northwest of Denton).

The new track - touted by a Santa Fe ad as being “the longest main line construction over new territory by any railroad in 25 years” - was important because it offered passengers from Dallas the ability to travel for the first time directly to Chicago without having to change trains. It also reduced freight line distances by 65 miles. The swanky streamlined Texas Chief shuttled passengers between Dallas’ Union Station and Chicago in about 19 hours - travel time between Union Station and the new White Rock Station was 25 - 30 minutes.” - Paula Bosse, Flashback Dallas

The Santa Fe Railroad’s White Rock Station was demolished in 1968.

Photo of White Rock Station and the Santa Fe Railroad Texas Chief, 1956, by Glen Brewer - Highland meadows Preservation Foundation

Successful Handling of Open Plan

by Jeanne Barnes - Home Editor of The News / October 27, 1958

A small house dsigned on the so-called open plan offers as great a challenge to decorating sill as a large on with many rooms.

For in a small area must be accommodated sufficient seating space, comfortable viewing of TV, conversation or reading groups and dining space.

Such a problem, successfully handled, is found in the home of the C. C. Kirkpatricks, 8612 Rolling Rock Lane, in the Lakeland Hills area off Northwest Highway. It was solved by Miss Joyce K. Winn, AID, of Anderson’s Studio.

The first steps in decorating the living-dining area were to paint all of the walls and ceiling a pale celadon green and carpet the area in an oatmeal textured wool. Matching green silk gauze draperies cover the two large and one small windows in the area.

A walnut and cane, four panel screen divides the kitchen also painted green, from the dining area. The dining room is furnished in Duncan Phyfe-styled mahogany with and embroidered effect fabric in peacock and white covering the chair seats.

The West wall of the living room, actually the front wall of the house facing the street is brick, forming an interesting textured background for the 3-cushion beige sofa. Above the sofa hangs a horizontal painting of Gothic court figures in processional. It is done in gold, black, and persimmon color.

A pair of square tables, on either side of the sofa and a square-topped cigarette table under the window provide an unusually large amount of table space. One of the square tables has a travertine inset top and a cane bottom shelf, which gives an interesting texture contrast.

The TV is placed against the storage wall between the living room and kitchen, facing the sofa. At right angles to the sofa is a low, square lounge chair covered in peacock and olive on white print. Facing the sofa is a peacock upholstered walnut chair and its mate sits at the end of the long walnut table by the window.

Behind the chair, against the wall, is a mahogany record cabinet. Above it hangs a group of colorful Spanish city paintings in wide white frames. Facing the front door is an unusual 4-foot-high teak placque to which peacock enamel on copper disks are attached and at the top, an electric clock with copper face.

The house has an unusual bathroom, one unit opening from the hall, the other from the master bedroom; the two are joined by a tub area. In the opening from the hall, folding wood doors conceal laundry equipment. The whole area is carpeted in yellow cotton.

Photograph: Living Room Styled with Simplicity, by Nowell Ward, 1958 - Highland Meadows Preservation Foundation

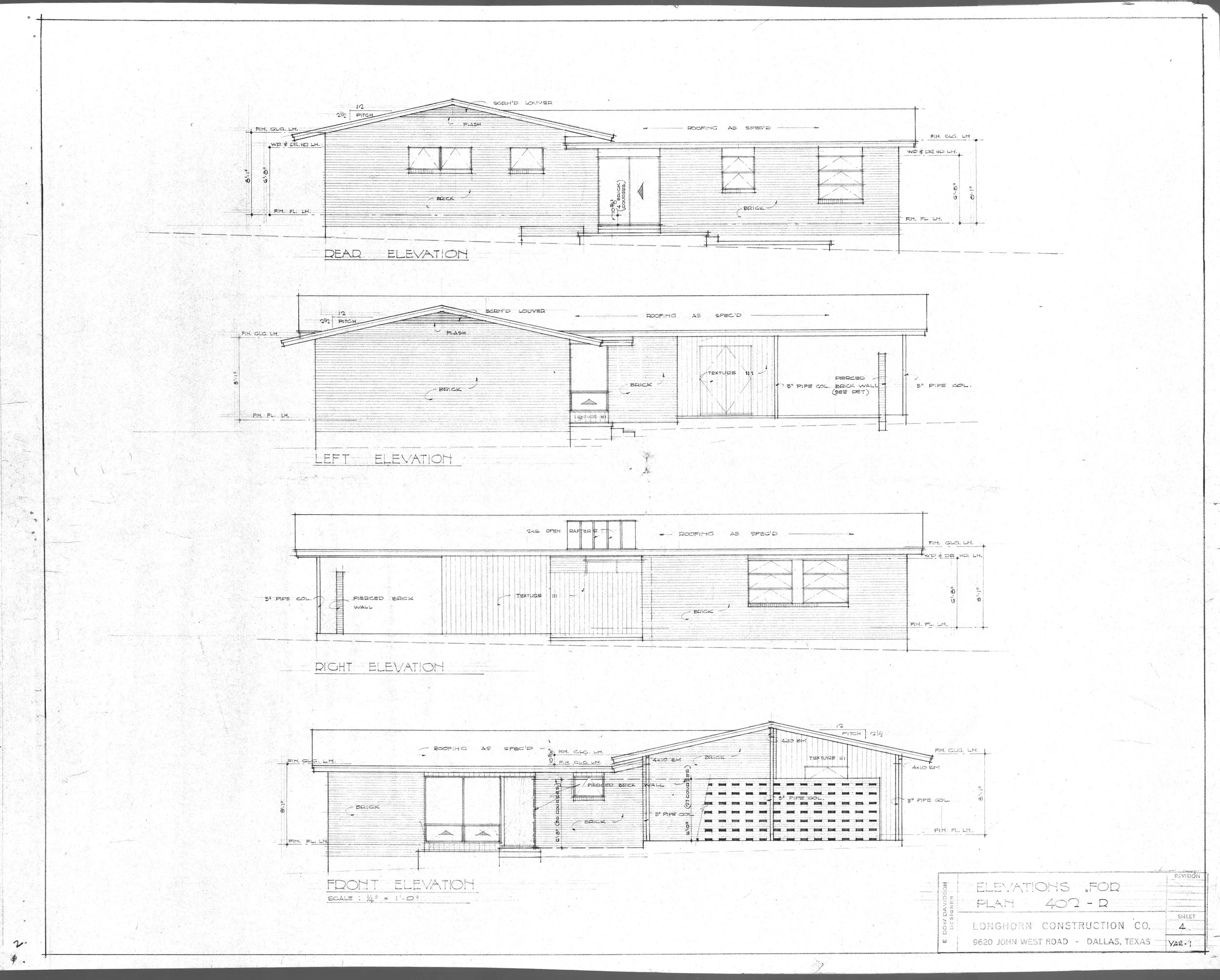
Architect’s Drawing for a Home in Lakeland Hills, 1956

Photograph: Architects Drawing for a Home in Lakeland Hills, 1956 - Highland Meadows Preservation Foundation

Illustration for the Hughes Home

Illustration of the “Hughes Home, architect Arch B. Swank, 1957, Lakeland Hills

Milton Hughes and Anne Hughes commissioned Arch B Swank and Associates to design their home on Cactus Ln in 1957. Milton was born in 1922 in Lake Forest, Illinois and served in the military in World War II. He attended Southern Methodist University and graduated with degrees in geology and psychology. Milton began working as a geologist for Atlantic Refining, later Atlantic Ritchfield Corporation soon after graduation.

Illustration of the Hughes Home, 1957, by J Stuart Todd, courtesy of Alexander Architectural Archive - Highland Meadows Preservation Foundation